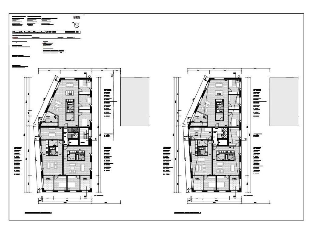
Architekturauftrag, Gesundheitshaus, 5630 Muri

Auftraggeber : Feldmann Generalbau AG, 5630 Muri

Typ: Wohnungsbau, Dienstleistungen

Jahr : Planung 2009-2010, Ausführung 2011-2014